Previous | Next | Discuss :: Free Advice (General Feng Shui)


Topic: House Shape & Stairs, 1 Attachments
Conf: Discuss :: Free Advice (General Feng Shui), Msg: 12196
From: Anon (Hidden from Privacy)
Date: 11/12/2002 05:58 AM

Dear Gwen Bui,

Thank you for your layout plan.

Please see below:-

On 11/12/2002 1:26:00 AM, Gwen Bui wrote:
>Dear Cecil,
>
>Thank you so much for having
>this wonderful forum!
>
>Regarding the attached
>floorplan, can you help me
>with the following questions?
>
>1) In determining the shape of
>the house, do we include the
>garage? If so, it appears to
>be an indented SW house. If
>we don't count the garage,
>what shape house do you think
>it is?

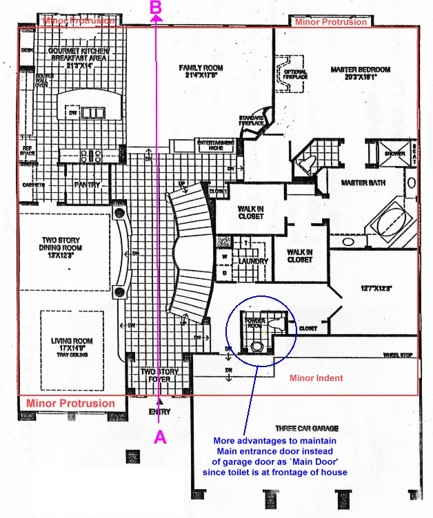
Please see attached illustration with the Shape of your house.

So far, the Shape looks rectangular.

The main concern is the toilet at the frontage of the house. And this is where, you should not make the garage door as your symbolic main entrance door.
>
>2) This is a two-sided
>stairway. Are the stairs in
>this house inauspicious?
>Would it help to chop off one
>side of the stairway so that
>we can only go up from one
>end?

In my opinion, your two-sided stairway does not seem to pose any major problems since there is a lift landing upstairs.

A two-sided stairway is in my opinion, very inauspicious if it is at the frontage of the house. Where, the two sets of steps join /meet together to the main entrance door. Also, from the layout plan, the front side of the stairway, seems safely tucked away at a side rather than fully exposed towards the main door.

Under your current situation, the main caution is to be careful not to allow qi to flow directly from marking A to marking B in a direct path.

If there is an open window at location marked B then, try to close them. We do not want beneficial qi to leak out of the house. But try to allow it to meander in the house.

Warmest Regards
Cecil

Click to open!floorplan-with-comments.jpg
Please see attached illustration... (296,941 bytes)

Copyright 1996-onwards Geomancy.Net, Cecil & Robert Lee. All Rights Reserved.

International Copyright & Intellectual Property Rights Notice
All messages posted TO THIS SITE which includes this forum and other contents made accessable by us to the public cannot be copied; reproduced; recompiled; stored in a retrieval system; or transmitted, in any form or by any means; electronic; mechanical; photocopying; recording; or otherwise. - Learn more

Please kindly contact us at support@geomancy.net. if you should encounter any breach of Copyright and Intellectual Property rights. Thank you in advance!

 

 

Back to Feng Shui at Geomancy.Net

 [ Site Search | Forum Search | Picture Search | Site Map ]

 

Help Desk: (65) 9785-3171

 

 

 

Highlights

Extend your learning with Master Cecil Lee's Applied Feng Shui Made Easy Book.

" Real People, Real Life, Real Situation " - Learn from thousands of actual case studies at our popular Free Advice Forum.

" Worry-Free Professional Feng Shui Services " - from the authors of Geomancy.Net

[ Award & Accolades ]
 

Site Navigation

Home
   Feng Shui Freebies
   Feng Shui Resources
     Fun with Feng Shui
     Major FS Theories
     Feng Shui Articles
     Feng Shui Advice
     FS Reference
     Slide Show
     Calendar of Events
     Educational Polls
     Site Review
     Yearly Forecast
     Chinese Horoscope
     Popular Topic
   Picture Resources
   Chinese Horoscope
   Personalised Reports
   e-Bookstore
   Feng Shui Courses
   Products & Services
   Consultation Services
   Shop @ Geomancy
   Students Services
   Events @ Geomancy
   Webmaster
   FAQ / Help
   About Us
   Contact Us
   Members Area
   Ask Expert Forum
   Search Website
   Site Tools
   Others Areas
   Live Chat
   Recommend Us
   Site Map