Previous | Next | Discuss :: Free Advice (General Feng Shui)
Dear Cecil,
> What is needed is a screen or a partition (if possible) - minimum
> up to the height of the door frame.
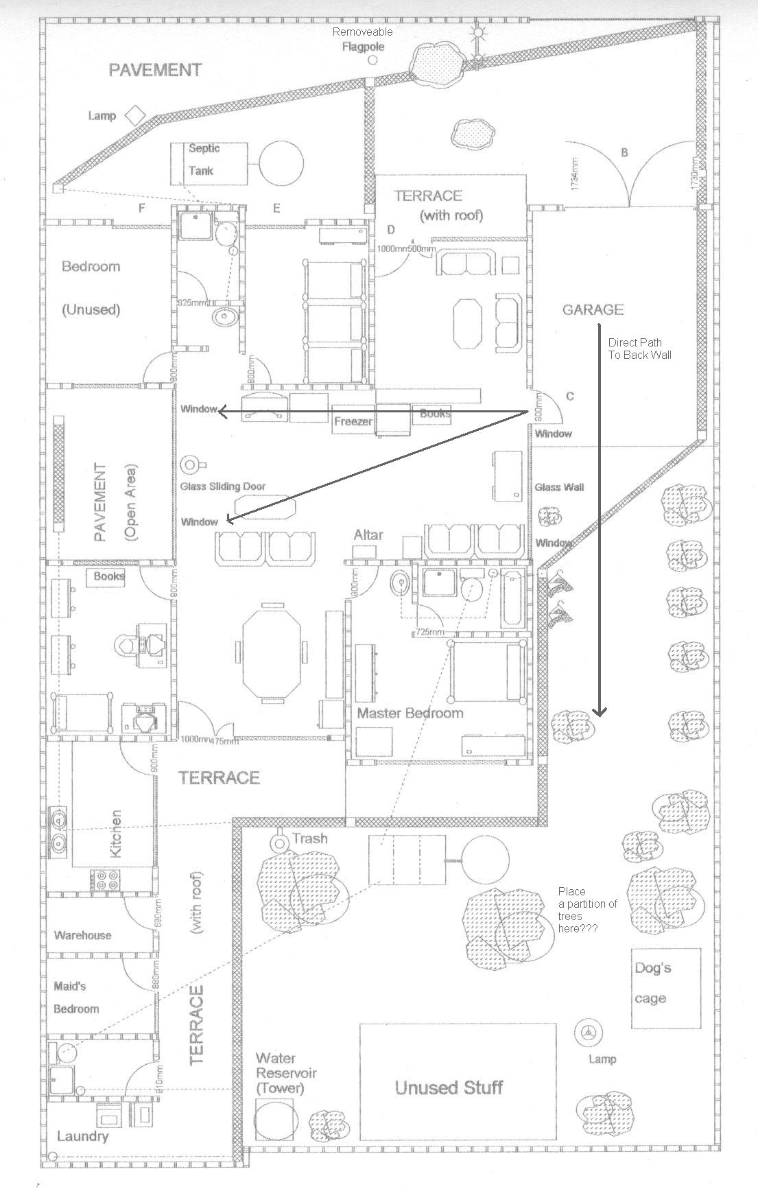
Can I use trees as a partition since it is open area behind the garage? And where should I place the partition?
> There is not much choice. do not open the front door together
> with the sliding door opened.
Fortunately, we seldom use the sliding door. It is closed whole day.
> Yes, in my opinion, there are too many `mouths' in your home
> especially, if you open most of the windows/ two sliding panels
> and even the front door. Plus, the side windows - if they are
> immediately close the the front of the house.
>
> Such a house will not prosper unless, you have a proper balance
> of the openings or the `mouth' of the house.
I think you should take a look at the picture I'm attaching for a better understanding. The current front door is at C.
Also, I have a water reservoir tower and laundry area at the back of the house. Is this considered leak?
Thanks in advance.
Regards,
Wasis
Leaks.JPG
House Plan and Identified Leaks (205,881 bytes)
|
|
[ Site Search | Forum Search | Picture Search | Site Map ] |
|
|
|
|
||
|
Help Desk: (65) 9785-3171 |
||
|
|
|
|
|
Highlights |
|
Extend your learning with Master Cecil Lee's Applied Feng Shui Made Easy Book. |
|
Site Navigation |
|
|
|
|
![]()